Ces travaux vont très sensiblement améliorer le confort et la sécurité des passagers, mais aussi les conditions de travail des employés.
Pierre-François Novella, représentant de la CCI, était sur place, jeudi, pour suivre l'avancée du chantier.
En quoi consiste t-il ?
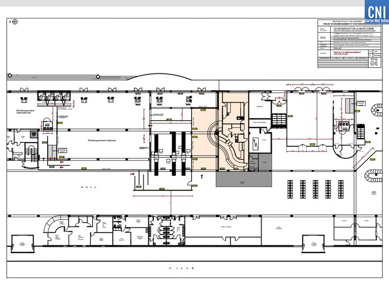
L'extension de la salle d'embarquement intégrant la reconfiguration de cette zone avec le maintien de la perspective en sortie du PIF (point d'inspection filtrage) passagers et la création de 3 portes d'embarquement supplémentaires en façade Est.
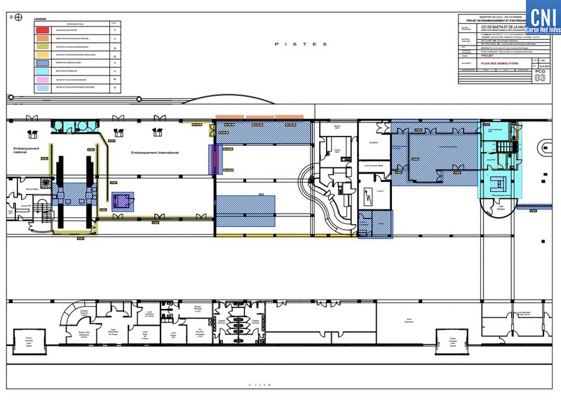
Cela ira de pair avec la démolition de cloisons, l'étanchéité en matière de sûreté pour l'extension de la salle d'embarquement (murs, sols, plafonds), ainsi que l'agrandissement de la zone dédiée au contrôle des passagers accédant en salle d'embarquement pour accueillir 3 postes d'inspection filtrage en tenant compte de zone d'évolution de la zone d'enregistrement des bagages;
En cours encore la création des sanitaires publics dans la salle d'embarquement national, la création d'une aubette de 3 postes pour la PAF destinée aux céparts concernant les vols internationaux et d'une aubette de 3 postes pour la PAF aux arrivées internationales.
En cours toujours la reconfiguration des circuits des arrivées nationales pour les passagers, le déplacement de portes anti-remontées de flux nationales et l’ajout de nouvelles portes anti remontées de flux pour les passagers internationaux.
Les études, la modification et l'extension du réseau aéraulique et des systèmes thermiques de l'extension de la salle d'embarquement, du sas arrivée et de la salle livraison bagages internationale sont aussi au programme avec les études, la modification et l'extension de la VMC, des installations électriques des nouvelles zones créées; et celles pour la modification et l'extension des équipements de sonorisation, de téléphonie, de contrôle d'accès et des réseaux existants pour le mobilier des portes d'embarquement.
Les travaux en cours porteront encore sur la modification et l'installation de dispositifs de désenfumage sur les études et la mise en place de matériels complémentaires pour le SSI, l'installation des mobiliers pour les portes d'embarquement et la mise en place de stores ou volets aciers résistants aux vents.
Les objectifs poursuivis sont multiples à commencer par l'amélioration de la qualité de service rendu aux usagers, l'augmentation de la capacité d'accueil de la salle d'embarquement de 350 à 800 passagers ainsi que sur le déplacement des Postes d’inspection filtrage des passagers ou du bureau des élus
A retenir encore la création d’un 3ème poste inspection filtrage afin d’augmenter le débit de traitement passagers de 288 à 432 passagers/heure, cela permettra de réduire le temps d’attente aux postes inspection filtrage), de fluidifier les circuits passagers aux arrivées et d'augmenter la capacité du contrôle transfrontalier immigration aux arrivées de 360 passagers/heure à 540 passagers/heures;
Nouveaux sanitaire, boutiques en salle d'embarquement, passage de 6 portes d'embarquement à 10 portes d'embarquement, amélioration la qualité de service aux passagers avec l’installation de banquettes d’attente allant de 4 à 8 places de dernière génération intégrant port USB de chargement électrique complèteront les infrastructures?
Coût de l’opération ?
710 000 euros financés à 80 % CCI2B et à 20 % (pour les PIF uniquement) par la redevance sureté
-
Intempéries en Corse : un avion endommagé, le trafic perturbé
-
Situation à l'aéroport Calvi-Balagne : le cri d'alarme de Claudine Orabona
-
Travaux de réaménagement de l'aire de stationnement d'aviation d'affaires et générale à l'aéroport de Calvi
-
Aéroport Calvi : vers un service minimum à compter du 9 novembre
-
Calvi-Balagne : la traque aux consommateurs de produits stupéfiants à l'aéroport





















Envoyer à un ami
Version imprimable






