Pour faire face à une pénurie de médecins dans la ville après le décès du regretté Dr Philippe Renault, qui nous a quittés en novembre 2019, et pour pallier aux départs à la retraite des docteurs Brigitte et Michel Fade, et éviter que la commune ne devienne pas un véritable désert médical, la municipalité de Calvi avait pris dans l'urgence la décision de réaliser sa propre Maison Médicale pouvant accueillir plusieurs médecins, sans pour autant passer par la filière classique jugée trop contraignante.
En remettant le 9 juillet 2020 les clés de cette réalisation attendue de tous aux nouveauèx venus, les Dr Joachim Rossi et Géraldine Vignes, ainsi qu'aux Dr Amel, Isabelle Soussi, et François Fremont, déjà en place à Calvi, Ange Santini, maire de Calvi évoquait déjà la possibilité d'une extension de la structure "Cette Maison (...) est extensible puisque en effet, outre les quatre cabinets disponibles et occupés aujourd'hui nous avons une possibilité d'accueillir encore deux médecins. Des démarches sont dores et déjà engagées en ce sens et la somme nécessaire sera inscrite au prochain budget. Nous avons déjà des contacts avec une gynécologue et médecins libéraux".
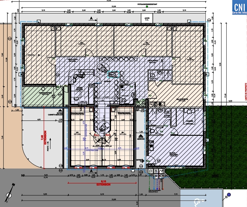
Ce projet modulable permettra donc aujourd'hui à deux nouveaux médecins de s'installer grâce à quelques travaux qui ont déjà débuté.
En remettant le 9 juillet 2020 les clés de cette réalisation attendue de tous aux nouveauèx venus, les Dr Joachim Rossi et Géraldine Vignes, ainsi qu'aux Dr Amel, Isabelle Soussi, et François Fremont, déjà en place à Calvi, Ange Santini, maire de Calvi évoquait déjà la possibilité d'une extension de la structure "Cette Maison (...) est extensible puisque en effet, outre les quatre cabinets disponibles et occupés aujourd'hui nous avons une possibilité d'accueillir encore deux médecins. Des démarches sont dores et déjà engagées en ce sens et la somme nécessaire sera inscrite au prochain budget. Nous avons déjà des contacts avec une gynécologue et médecins libéraux".
Ce projet modulable permettra donc aujourd'hui à deux nouveaux médecins de s'installer grâce à quelques travaux qui ont déjà débuté.
Accueil de deux nouveaux médecins
Lors d'une réunion du conseil municipal, Ange Santini, a indiqué à l'assemblée que: " La commune a été sollicitée pour accueillir deux médecins supplémentaires, ce qui permettrai d'avoir 6 médecins au total . Nous devons saisir cette opportunité et faire en sorte de rendre notre ville de Calvi encore plus attractive en mettant tout en oeuvre pour faire venir ces deux médecins supplémentaires et ainsi améliorer ce service de proximité".
Lors d'une réunion du conseil municipal, Ange Santini, a indiqué à l'assemblée que: " La commune a été sollicitée pour accueillir deux médecins supplémentaires, ce qui permettrai d'avoir 6 médecins au total . Nous devons saisir cette opportunité et faire en sorte de rendre notre ville de Calvi encore plus attractive en mettant tout en oeuvre pour faire venir ces deux médecins supplémentaires et ainsi améliorer ce service de proximité".
-
Scola Corsa : six postes actés, cinq promis, mais l’inquiétude demeure
-
Bastia : la CAB dresse ses ambitions pour le handisport
-
Bastia - Marlène Schiappa, invitée de Cine Donne : « Quand on est une femme enceinte au pouvoir, on est vraiment à la croisée de tous les tabous possibles ».
-
Nettoyage du Vieux-Port de Bastia : plongeurs, lycéens et associations mobilisés pour la mer
-
Le dessin de Battì : l'anniversaire de la création du FLNC

















Envoyer à un ami
Version imprimable






